無事予約見学会終了しました。無事鉄骨階段納まりました。
今日は、寒い一日でした。
今日は、予約見学の物件をUPします。
天神町のK様邸の予約見学会を行いました。
1Fは、Fcon設置の住宅です。 今日は、まだ作動できていない状態で6畳用1台で対応しました。省エネ住宅ですので
エアコン1台でもそこそこ家全体が温かくなりますのでFconが作動した後が楽しみです。
今日は、お忙しい中 H様、M様来場ありがとうございました。m(__)m
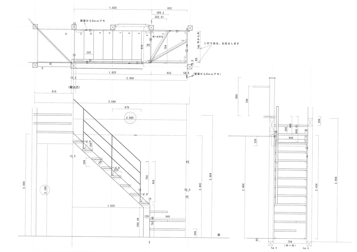
こちらのK様邸は、階段部分が鉄骨部分があり、自分が図面を今回書きました。
全て図面通りの仕上がりになります。 回り階段3段部分が神経をつかう場所でしたがうまくいきました。
下からの写真です。 手摺も予定通りです。
上からの写真です。 踏み板は、無垢の集成階段です(ウッドワン)厚み36mm
最期に裏側からの写真です。 取付が終わると簡単そうですが、側板も片方で100kgありますので取付は、大変だったと思います。
スタッフが取付てくれました。(^^)/ 鉄骨のグレーの色は、お客様の指定になります。 今回は、現場で錆止め塗装~色付けまで行いました。
今日の報告でした。









